Košík
0
$0,00

sídliště Opava Kateřinky r 2008
Obnova prostranství Zděchov - rok 2009 - území CHKO

Obnova nové části městského hřbitova v Přerově - rok 2009

Přírodní zahrada Brumov - Bylnice, Svatý Štěpán - rok 2015

Oáza klidu Francova Lhota - rok 2012

HISTORICKÉ ZAHRADY
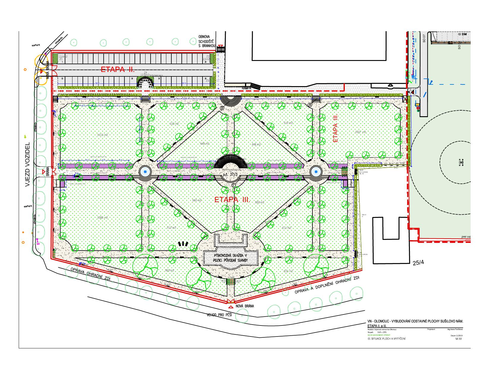
Park - barokní zahrada u kláštera Hradisko - vojenská nemocnice - Olomouc - realizace 2023


Rajhrad - Klášterní hradisko - zelenomodrá infrastruktura
biocentra - biokoridory - aleje - remízky - odpočívadla